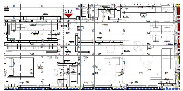
Stan 13
| Kvadratura prostorija | |
|---|---|
| 1. hodnik 1 | 6.48m2 |
| 2. kuhinja sa trpezarijom | 9.90m2 |
| 3. dnevna soba | 11.85m2 |
| 4. toalet | 1.68m2 |
| 5. hodnik 2 | 2.38m2 |
| 6. spavaca soba 1 | 10.49m2 |
| 7. spavaca soba 2 | 12.33m2 |
| 8. kupatilo | 5.22m2 |
| 9. neto povrsina zatvorenog prostora | 60.32m2 |
| 10. ukupna povrsina | 60.32m2 |